方案展示
設計說明
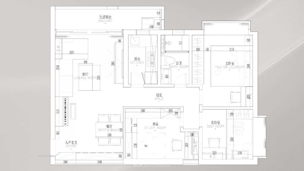
業主是90后建筑師,作為婚房有自己的要求,簡約而克制,溫馨又有細節,不追求繁復的裝飾。整體色調把控再高亮的咖色調,明亮二溫馨,配合輔助燈光,空間不失層次有簡潔。
[展開]-
星藝設計師的其它設計案例
-
簡約風格的其它設計案例
關注我們
分享到
微信

立即預約
在線咨詢
在線客服
公安部備案號 44010602004978號