103㎡現代 | 棕調現代風,就億點點好看~
2024-07-12 10:52:43
時間會改變很多東西,我們的實際居住需求會在碰撞彌合中展示出多元化的存在。
家有多種形式,兩人小家,一家三口,四人之家.......無論是哪一種,都不妨礙家的底色——溫暖。
地址 add:廣州半山豪庭
面積 area:103㎡
風格 style:現代
01
重組構建
我們喜歡一望無際的大草原,因為那是自然,是公共區域。
換成自己的家,則是顧及隱私,同時又在追求一種通透感。所以設計師在入口玄關處,增加半通透的屏風處理,透光透氣,還吸引人眼球。
吸引人的,不只是新家落成那刻,還有家從毛坯蛻變的前后對比。
從左圖到右圖,就像普通雞蛋做成了“賽螃蟹”,不僅僅賞心悅目,還直觀感受到貴氣。
貴氣有時候不是靠大尺度完成,材料搭配上顏色也能實現。法式護墻板,配上卡布奇諾色調,絨布的沙發,這三者結合,怎么看都順眼。
它的順眼在于不是束之高閣的奢華,而是切實可觸及的溫暖。
02
借光而行
廚房與餐廳鏈接成一個整體,形成洄游動線,廚房的操作臺是一整個U型,洗切炒流水線式運作,效率提高,縮短忙碌的時間。
廚房的大玻璃窗,中間部分是一整塊玻璃,兩旁是可開合的窗戶,既不阻礙視線,又實現區域通風,一舉兩得。
作為中式廚房,油煙必不可少,如何避免蔓延到客廳區域呢?推拉玻璃門輕松解決。
客廳與餐廚區域平日是連通一體的,當要煮菜,可以把玻璃門拉出來,隔絕油煙,但不阻礙光線,家里依舊亮堂堂的。
03
感知溫度
臥室,整個房子最具隱私的空間,同時也應該是最為安靜的,所以希望通過布局合選材,轉譯出別樣的風景。
紗簾將窗外的景致和光線朦朧化,懸空的柵格柜打破了常規的排版方式,形成和諧畫面,又增加儲物功能。
同樣是柔和、暖色的主基調下,次臥用煙粉色賦予空間活力和美好的向往。
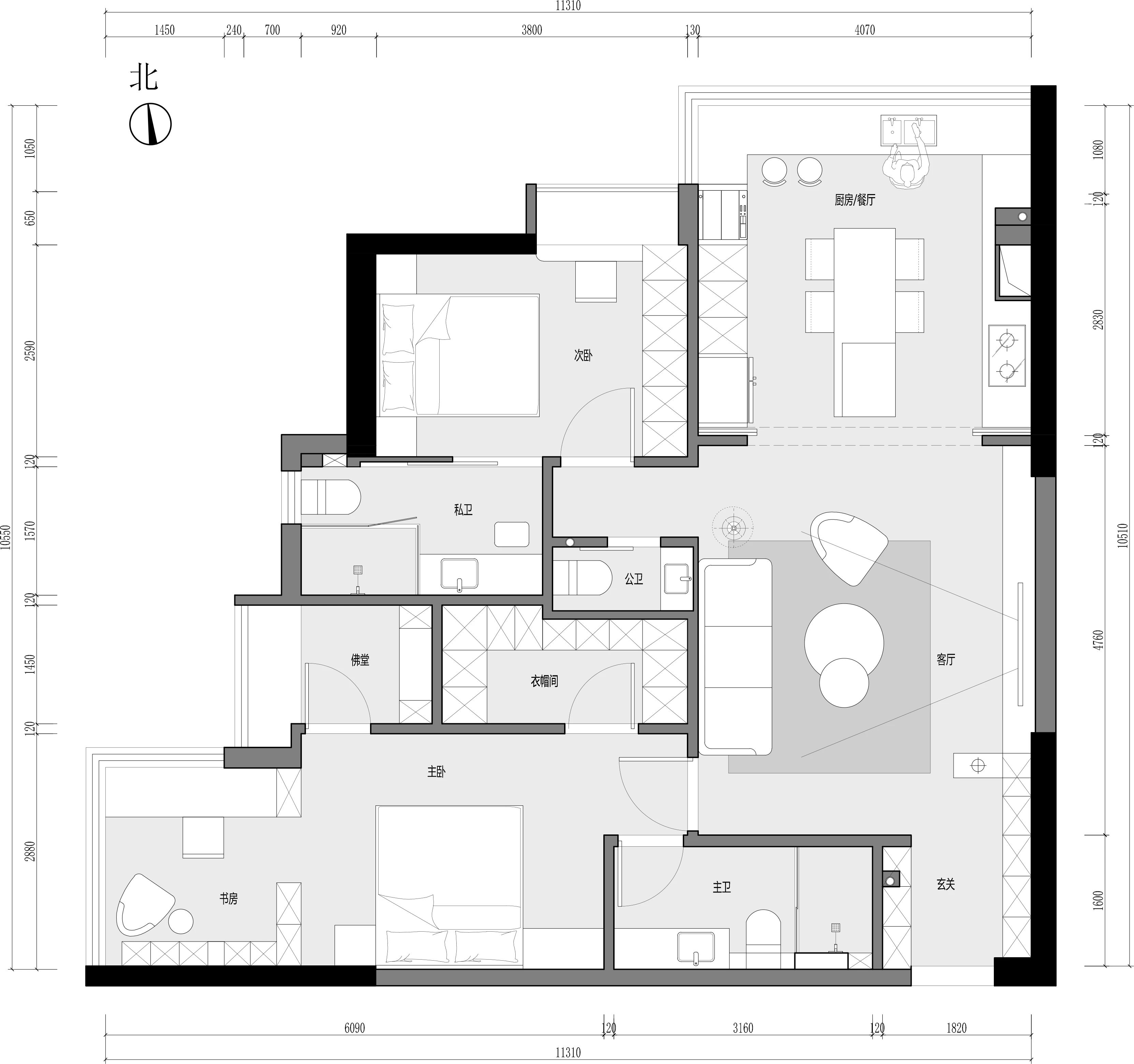
| 平面圖

設計師 designer:李辰















關注我們
在線客服
公安部備案號 44010602004978號
暫無留言